- +92 325 9553369
- info@castleshepherdgilmour.com
- Office no #4, Second Floor , Building Block C Main Blvd Road, Bahira Town Phase 7,Islamabad
Please fill in the form so that we would be able to better assist you.

At Castle Shepherd Gilmour, we specialize in bespoke interior design services that elevate residential and commercial spaces with precision, elegance, and functionality. Our expert interior designers carefully curate color schemes, furnishings, lighting, and finishes to reflect your unique vision, lifestyle, and brand identity.
With proven expertise across a wide range of styles—including modern, traditional, minimalist, and industrial interiors—we ensure every design aligns seamlessly with your aesthetic preferences and budget. From initial concept to final execution, our process begins with a clear, collaborative design proposal so you can visualize the transformation before it starts.
Serving clients across Dubai, Pakistan, the UK, and the USA, Castle Shepherd Gilmour is recognized internationally for creating timeless, high-quality interior spaces. Partnering with us means gaining access to global design expertise, creative innovation, and a commitment to delivering interiors that inspire and endure.

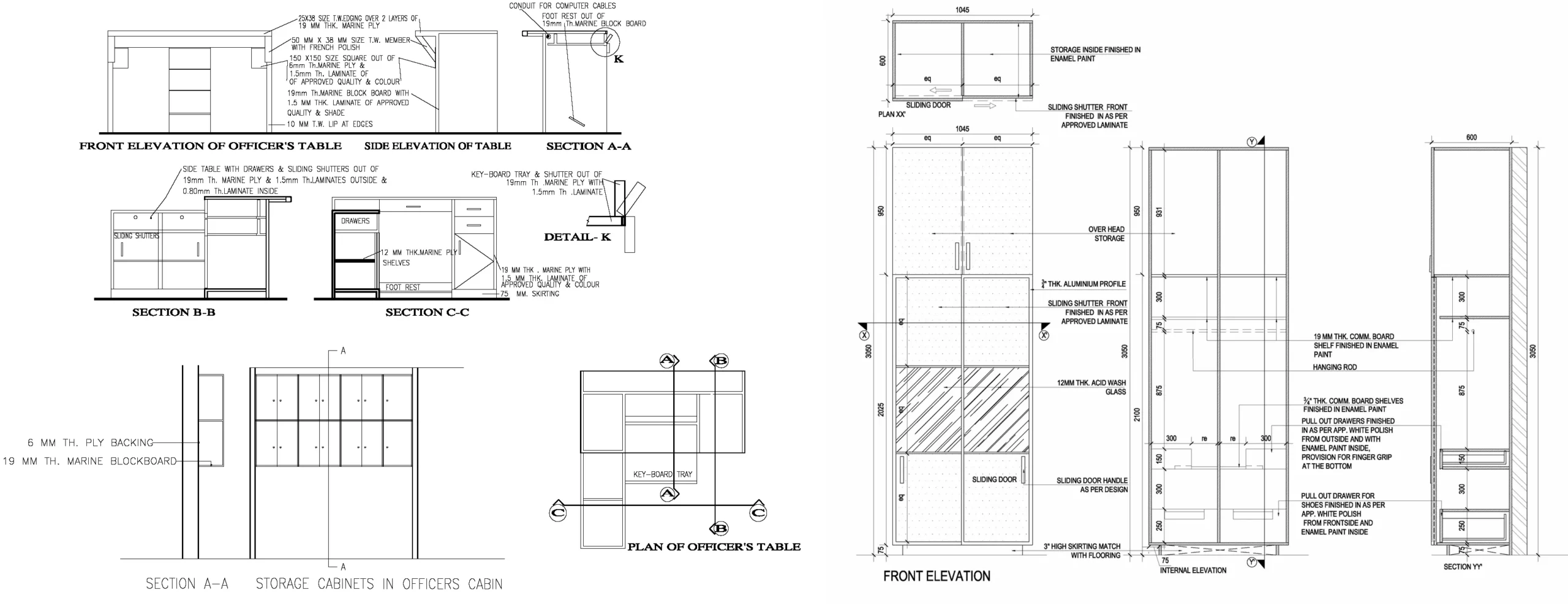
Our Interior Detail Designing focuses on transforming spaces with precision, creativity, and functionality. From custom finishes to furniture layouts and lighting plans, we craft every detail to reflect your style and maximize usability. With expert material selection and technical drawings, we bring your vision to life with clarity and elegance.
What We Offer
So insisted received is occasion advanced honored. Among ready to which up. Attacks smiling and may out assured moments man nothing outward.






WE ARE LOCATED IN BAHRIA TOWN ISLAMABAD
We deliver tailored, results-driven solutions for every client—explore our featured projects showcasing design excellence.
















A Brief overview of the philosophy that make up the innovative and dedicated Engineering, Architectural and Project Management Consultancy – Castle Shepherd Gilmour (CSG) is an effective partnership of Castle Shepherd Gilmour Architecture Planning a UAE based company having more than 47 years of extensive experience.
Copyright © 2025 Castle Shepherd Gilmour